サンワ開発の間取り事例 No.001
延床面積37坪
間取り4LDK+S
LDK広さ18帖
限られた敷地でも緑を感じたい。そんなご要望を軸にしつつも家事動線や収納量もしっかり担保した充実間取り。
各部屋もしっかりサイズがうれしいプラン。
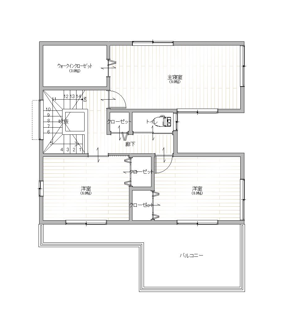
各階の部屋構成
| 1階 | LDK18帖、独立洋和室6帖,洗面脱衣3帖、リビングCL |
|---|---|
| 2階 | 洋室6帖×2、寝室9帖+WIC |
POINT
1番の見どころは植栽を植えられる中庭スペース
外部からの視線を遮りながら、光と風、そして緑を室内に取り込む設計です。 お気に入りのシンボルツリーを眺めながら、日常の中で季節の移ろいを感じる贅沢な時間を過ごせます。
将来は1階で生活をすることを見越した独立和室プラン!
ライフスタイルの変化に対応する賢い選択です。 現役世代にはリモートワークや来客用の個室として、将来は階段の上り下りがないメイン寝室として。 フローリング仕様にすることで、重いベッドや家具も配置しやすく、多目的に活用いただけます。
キッチンからの家事動線と収納量が充実
日々の暮らしの質は、効率的な動線で決まります。 買い物帰りから料理、片付けまでを最小限の動きでこなせる設計に加え、適材適所の収納が「散らからない家」を実現。 心にゆとりが生まれる住まいです。
この間取り、こんなカスタムもできます!
-
BEFORE
1F奥の和室 -
AFTER
フローリングにして洋室に変更
-
1階中央の廊下部分→リビング収納を2帖に広げてファミクロサイズに!

CONTACT まずはお気軽にご相談ください
土地探しから家づくりまで、お気軽にご相談ください。
あなたの“うち色”を一緒に見つけます。
-
お電話でのお問い合わせ0574-28-1885 電話受付:平日 9:00~18:00
(祝日・年末年始を除く) -
メールでサンワに聞いてみよ
-
資料請求はこちら
規格住宅の価格で、注文住宅の自由度を。
「こんなに自由に変えられるなら、注文住宅と同じくらい高いのでは?」 そう思われた方も多いかもしれません。
実は、サンワ開発のセミオーダー住宅は「規格住宅に近い価格帯」で、ここまで自由なカスタムが可能です。
| フルオーダー注文住宅 | サンワ開発 | 一般的な規格住宅 | |
|---|---|---|---|
| 自由度 |
◎ ゼロから設計 |
◎ ベースから自在に変更 |
△ 決まったプランから選択 |
|
価格帯 (税込目安) |
自由度は高いが少し高め | 2,100万円 | 通常の価格に加えてオプションの費用 |
REASON 自由度の高い理由
なぜ、この価格で
ここまで自由なのか?
-
100種類以上の間取りベース
ゼロから設計する注文住宅と違い、サンワ開発には100種類以上の間取り事例があります。この「土台」があるから、設計の手間と費用を大幅にカット。浮いた予算を、あなたの「こだわりのカスタム」に回せます。
-
構造計算を熟知したプロが「その場で判断」
「この壁は抜ける?」「窓を大きくできる?」——経験豊富な設計士が構造への影響を即座に判断し、安全かつコストを抑えたアレンジを提案します。だから、無駄な設計のやり直しが発生しません。
ABOUT
100種類以上ある間取りの基本プランをベースに、
あなたのライフスタイルに合わせたアレンジが可能です。
- ゼロから考えるよりもスムーズに
- 注文住宅よりもリーズナブルに
- 規格住宅よりも自由に
まずはベースとなるプラン選びから始めませんか?

CONTACT まずはお気軽にご相談ください
土地探しから家づくりまで、お気軽にご相談ください。
あなたの“うち色”を一緒に見つけます。
-
お電話でのお問い合わせ0574-28-1885 電話受付:平日 9:00~18:00
(祝日・年末年始を除く) -
メールでサンワに聞いてみよ
-
資料請求はこちら

