サンワ開発の間取り事例 No.002
延床面積37坪
間取り4LDK+SS
LDK広さ20帖
ベース間取りとして上位に位置するプラン。
帰ってそのまま洗面に行ける、ぐるっと一周出来る回遊動線、20帖LDKもしっかり確保、リビングにはWICがあり、急な来客にも対応できる便利なプランです。
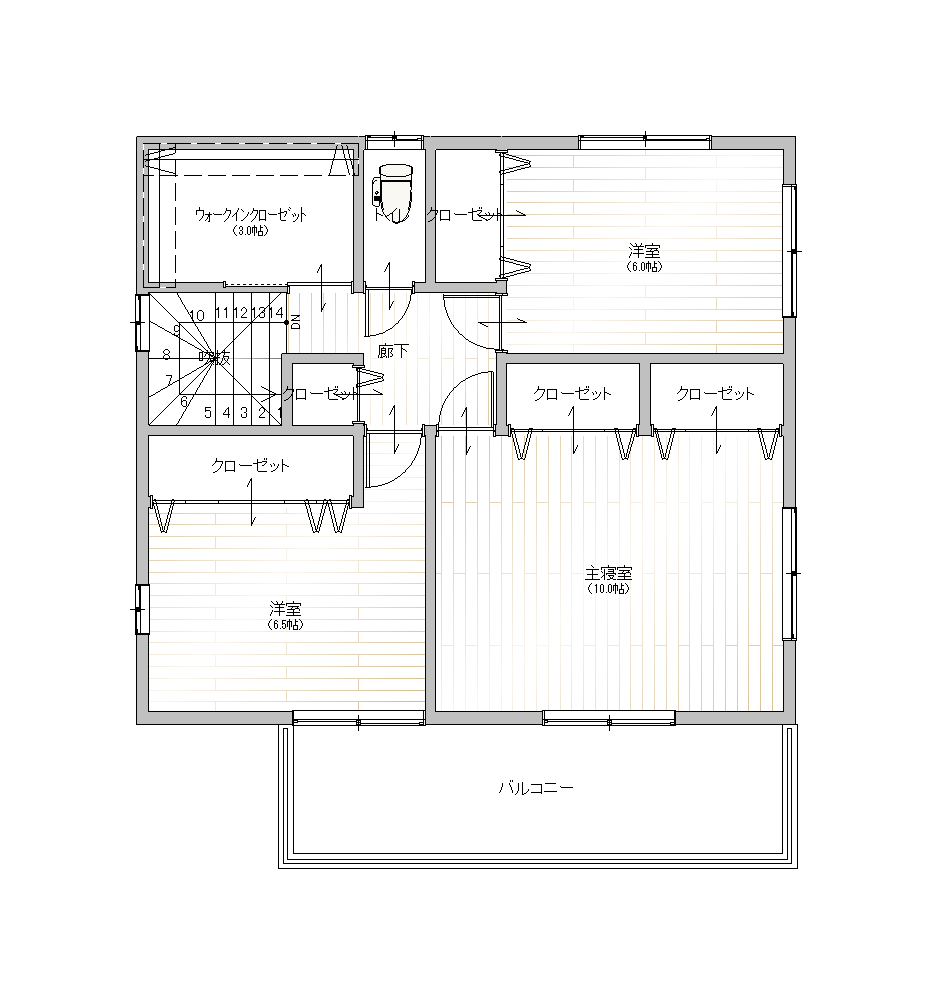
各階の部屋構成
| 1階 | 玄関2帖、LDK20帖、洋和室5.2帖、洗面脱衣3帖、WIC |
|---|---|
| 2階 | 洋室6帖×2、寝室10帖、WIC |
POINT
回遊動線
キッチン、ホール、洗面所をぐるりと回れる便利な回遊動線を採用。行き止まりがないため、家事の同時並行もスムーズです。家族同士のすれ違いもストレスフリーで、暮らしの中に心地よいリズムとゆとりを生み出します。
帰宅後そのまま洗面、浴室へ行ける
玄関からホールを経て、洗面所へ直行できる「ただいま動線」を確保。ウイルスや汚れをリビングに持ち込まず、帰宅後すぐの手洗いや入浴が習慣化します。清潔な住環境を保ちたい現代の暮らしに最適なレイアウトです。
LDK20帖
家族が集うLDKは、広々とした20帖の大空間。対面式キッチンからはリビング全体が見渡せ、和室とも隣接しているため開放感は抜群です。大型家具を置いてもゆとりがあり、家族それぞれが思い思いの時間を過ごせます。
寝室10帖
主寝室は、贅沢な10帖の広さを確保しました。ゆったりとしたキングサイズのベッドを置いても余裕があり、一日の疲れを癒やす上質な休息空間となります。大型のクローゼットも備え、寝室を常に美しく保てる設計です。
この間取り、こんなカスタムもできます!
-
BEFORE
1階WIC -
AFTER
ウォークスルーにしてさらに回遊度UP!
-
収納量に余裕があったので、2FWICを書斎に変更!

CONTACT まずはお気軽にご相談ください
土地探しから家づくりまで、お気軽にご相談ください。
あなたの“うち色”を一緒に見つけます。
-
お電話でのお問い合わせ0574-28-1885 電話受付:平日 9:00~18:00
(祝日・年末年始を除く) -
メールでサンワに聞いてみよ
-
資料請求はこちら
規格住宅の価格で、注文住宅の自由度を。
「こんなに自由に変えられるなら、注文住宅と同じくらい高いのでは?」 そう思われた方も多いかもしれません。
実は、サンワ開発のセミオーダー住宅は「規格住宅に近い価格帯」で、ここまで自由なカスタムが可能です。
| フルオーダー注文住宅 | サンワ開発 | 一般的な規格住宅 | |
|---|---|---|---|
| 自由度 |
◎ ゼロから設計 |
◎ ベースから自在に変更 |
△ 決まったプランから選択 |
|
価格帯 (税込目安) |
少し高め | 2,100 | 通常価格+オプション価格 |
REASON 自由度の高い理由
なぜ、この価格で
ここまで自由なのか?
-
100種類以上の間取りベース
ゼロから設計する注文住宅と違い、サンワ開発には100種類以上の間取り事例があります。この「土台」があるから、設計の手間と費用を大幅にカット。浮いた予算を、あなたの「こだわりのカスタム」に回せます。
-
構造計算を熟知したプロが「その場で判断」
「この壁は抜ける?」「窓を大きくできる?」——経験豊富な設計士が構造への影響を即座に判断し、安全かつコストを抑えたアレンジを提案します。だから、無駄な設計のやり直しが発生しません。
ABOUT
100種類以上ある間取りの基本プランをベースに、
あなたのライフスタイルに合わせたアレンジが可能です。
- ゼロから考えるよりもスムーズに
- 注文住宅よりもリーズナブルに
- 規格住宅よりも自由に
まずはベースとなるプラン選びから始めませんか?

CONTACT まずはお気軽にご相談ください
土地探しから家づくりまで、お気軽にご相談ください。
あなたの“うち色”を一緒に見つけます。
-
お電話でのお問い合わせ0574-28-1885 電話受付:平日 9:00~18:00
(祝日・年末年始を除く) -
メールでサンワに聞いてみよ
-
資料請求はこちら

