-
関市下有知2号棟 外観パース
-
※リアルパース インナー玄関で雨の心配無し!
-
※リアルパース 広く明るい玄関には隠し扉が・・・!?
-
※リアルパース お子様も走り回れる広々リビング
-
※リアルパース 陽当たり良好!
-
※リアルパース キッチン タカラスタンダード オフェリア
-
※リアルパース カウンター付きキッチンで来客と過ごす場所にもなります。
-
※リアルパース ママへのプレゼント「大型パントリー」
-
※リアルパース ママへのプレゼント2「GOOD家事動線」
-
※リアルパース キッズルームにもランドリールームにも利用できます。
-
※リアルパース 3帖の洗面脱衣室。明るくて良いですね。
-
※リアルパース タカラスタンダード リラクシア
0/0
画像一覧
×
-
資料請求はこちら
-
見学はこちら
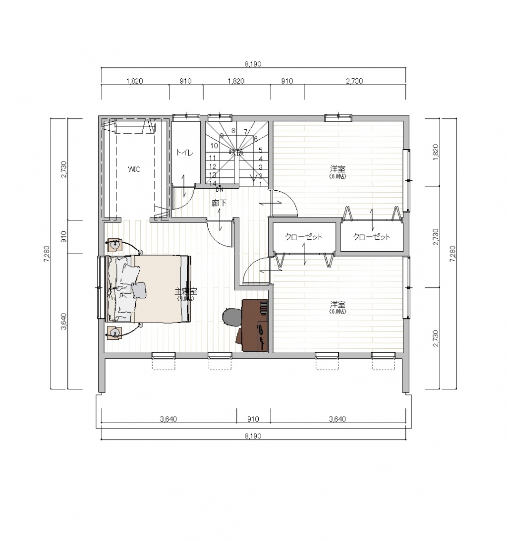
間取りについて
| 間取り | 4LDK+S |
|---|---|
| 敷地面積 | 189.07㎡(57.19坪) |
| 延床面積 | 115.95㎡(35.07坪) |
| 駐車スペース | 駐車3台可 |
POINT この物件の注目POINT〜まるで注文住宅!〜
カウンタ付きキッチンの格子壁が映える4LK
物件概要
| 物件名 | 関市下有知②号棟【ZEH仕様】 |
|---|---|
| 所在地 | 関市下有知字寺下 |
| 間取り | 4LDK+S |
| 土地面積 | 189.07㎡(57.19坪)他 |
| 竣工時期・ 入居可能日 |
2026年7月頃完成予定 |
| 用途 | 居宅 |
| 用途地域 | - |
| 建築条件 | なし |
| 取引態様 | 売主 |
| 設備 | オール電化、上下水道引込済み |
| 販売価格 | 2830万円(税込)~ |
|---|---|
| 区画数 | 3区画 |
| 延床面積 | 115.95㎡(35.07坪) |
| 建ぺい率・ 容積率 |
60%・200% |
| 構造・階数 | 木造軸組みパネル工法・2階建て |
| 地目 | 宅地 |
| 都市計画区域 | 非線引区域 |
| 開発許可 | なし |
| 建築確認番号 | - |
| 備考 | - |

CONTACT まずはお気軽にご相談ください
土地探しから家づくりまで、お気軽にご相談ください。
あなたの“うち色”を一緒に見つけます。
-
お電話でのお問い合わせ0574-28-1885 電話受付:平日 9:00~18:00
(祝日・年末年始を除く) -
メールでサンワに聞いてみよ
-
資料請求はこちら












担当者コメント
小学校や中学校も近く、美濃インターまでもスグな好立地に分譲住宅が登場しました。
一番の見どころは家事動線。マルチスペースをどのように利用するかはご家庭によりで使いやすい間取りです。
ママの「欲しかった」の声を詰め込んだ、まるで注文住宅のような1棟です。